Ref
Busco
Tipo
En
Zona
Habitaciones
Baños
Características
Precio

Piso alto y luminoso en la Sagrada Familia- a actualizar (ref.5689)

 65 m2 |  3 |  2 |  5 |
venta: 385.000 €
Ref. 5689 |  65 m2 |  3 |  2 |  5 |
venta: 385.000 €

Piso alto y luminoso en la Sagrada Familia- a actualizar

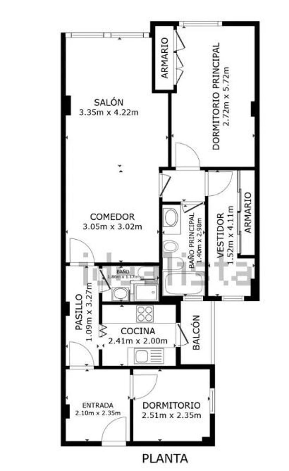
PISO ALTO CON LUZ NATURAL EN SAGRADA FAMILIA – CALLE MARINA CON INDUSTRIA Excelente vivienda en venta situada en calle Marina, en pleno barrio de Sagrada Familia, una de las zonas más demandadas de Barcelona. Se trata de una quinta planta real en finca con dos ascensores, lo que le aporta una excelente altura, abundante luz natural y una agradable sensación de amplitud. La vivienda orienta a un amplio patio de manzana, muy despejado, tranquilo y luminoso. El piso se distribuye de manera funcional en: Tres dormitorios: uno doble exterior y dos individuales interiores, ideales como habitaciones secundarias, despacho o vestidor. Amplio salón-comedor, luminoso y con orientación este. Cocina independiente con galería/lavadero anexo, muy práctica como zona de lavado y almacenaje. Dos baños completos, que aportan comodidad para familias o para quienes buscan mayor funcionalidad en el día a día. La vivienda ofrece una base sólida y una distribución muy aprovechable, con gran potencial de actualización según necesidades. Ubicación inmejorable, en la confluencia de Marina con Industria, rodeado de comercios, servicios, transporte público y a pocos minutos de la Sagrada Familia. Una excelente oportunidad tanto para vivienda habitual como para inversión. 

Producto Apialia. Impuestos no incluidos en el PVP. 

Año de construcción 1971
Construidos 65 m2
Útiles 60 m2
Repercusión m² venta 5.923
Dormitorios 3
Baños 2
Altura/Planta 5
Orientación Este
Estado Buen estado
Ascensor
Calificación Energética (E) VER

Si desea más información sobre esta propiedad, por favor, rellene el cuestionario:

  • Administrador de fincas Barcelona
  • Comunidad de vecinos Barcelona
  • Gestión patrimonio Barcelona
  • Comprar Piso Barcelona
  • Alquilar Piso Barcelona
  • Pisos en Venta Sagrada Familia
  • Pisos en Alquiler Sagrada Familia
  • Pisos en Venta en el Eixample
  • Pisos en Alquiler en el Eixample
  • Comprar Áticos en el Eixample
  • Pisos en Venta y Alquiler Eixample Dreta de Barcelona
  • Comprar Pisos en el Eixample Dreta de Barcelona

FINQUES FUTURA
Calle Còrsega 430 BIS
08037 – Barcelona

932 853 232
Comercial: 654 317 306 Administración: 617 347 499
Horario de lunes a jueves
Mañanas de 9:30h. a 14:00h.
Tardes 15:30h. a 19:00h.
Viernes de 9:30h. a 14:00h.